Antalya’ya 947 milyon TL’lik 5 yıldızlı yeni otel yatırımı

Antalya’ya 947 milyon TL’lik 5 yıldızlı yeni otel yatırımı

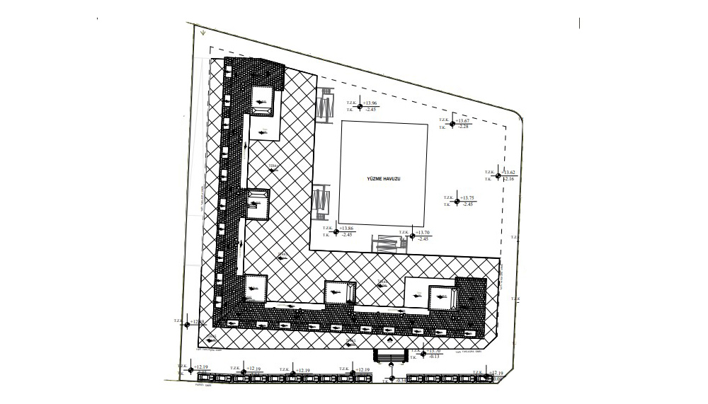
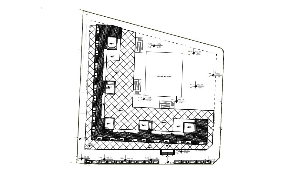
Antalya-Manavgat’a 947 milyon TL yatırımla 5 yıldızlı 248 odalı otel yapılması planlanıyor.


Turizm Güncel

Antalya’nın Manavgat ilçesi Ilıca Mahallesi 776 ada 6 parseldeki 8 bin 751 metrekarelik arazi üzerine 946 milyon 959 bin TL yatırımla 5 yıldızlı otel yapılacak.

Optimal Turizm Sanayi Ticaret Anonim Şirketi tarafından yapılacak otelde 248 oda 496 yatak kapasitesi bulunuyor.

Proje alanı 1/25.000 ölçekli Nazım İmar Planında Kentsel Yerleşme Alanı, 1/5.000 ve 1/1.000 ölçekli Nazım İmar Planlarında Konut Yerleşme Alanları içerisinde ve 1/100.000 ölçekli Çevre Düzeni Planında Kentsel Gelişme Alanı içerisinde kalıyor.

Otellin inşaat aşamasında 75, işletme aşamasında ise 100 kişinin istihdam edilmesi planlanıyor.

Otel projesi için Çevre, Şehircilik ve İklim Değişikliği Bakanlığına bağlı Çevresel Etki Değerlendirmesi İzin ve Denetim Genel Müdürlüğü tarafından ÇED süreci başlatıldı.



Bu Haber 24.02.2025 - 15:21:05 tarihinde eklendi.
Kullanıcı Yorumları
Henüz yorum yapılmadı.
En Çok Okunanlar
Bunları Okudunuz Mu?
Yazarlar
Tüm Yazarlar
GÜNCEL HABERLER
SEKTÖREL HABERLER

Turizm gündemine ilişkin haberlerin her gün mail adresinize gelmesi için abone olun.